Moderná vila v Rosine

IDEA A SLOVO ARCHITEKTA

Z dizajnu tejto vily máme veľkú radosť. :)
Je ukážkou toho, ako dielo môže vyzerať v prípade, keď medzi architektom a klientom zapracuje doslova chémia, keď pri tvorbe sme dostali voľnosť aj čo sa týka budgetu a veľkosti pozemku.

Nadčasový dizajn vily je príkladom toho ako vytvoriť niečo, čo bude moderné aj o niekoľko rokov. Dôkazom sú jasné čisté línie, veľké okenné otvory prepájajúce záhradu s domom, interiérové priehľady, ktoré doslova berú dych. Príkladom je prepojenie bazéna priamo s obývacou izbou, poloátrium, ktoré do interiéru vtiahlo zeleň a vytvorilo tak harmonickú symbiózu alebo smerovanie izieb na najkrajšie výhľady, ktoré ponúka miestna prírodná scenéria.

Priestory vily ponúkajú bohaté priestorové možnosti pre väčšiu rodinu a potenciál pre dizajnový interiér.

Osadenie domu je situované v miernom svahu na najvyššej časti pozemku, pričom pozorovateľ vníma jeho postupné klesanie a tým sa vytvára pocit vzdušnosti a slobody. 

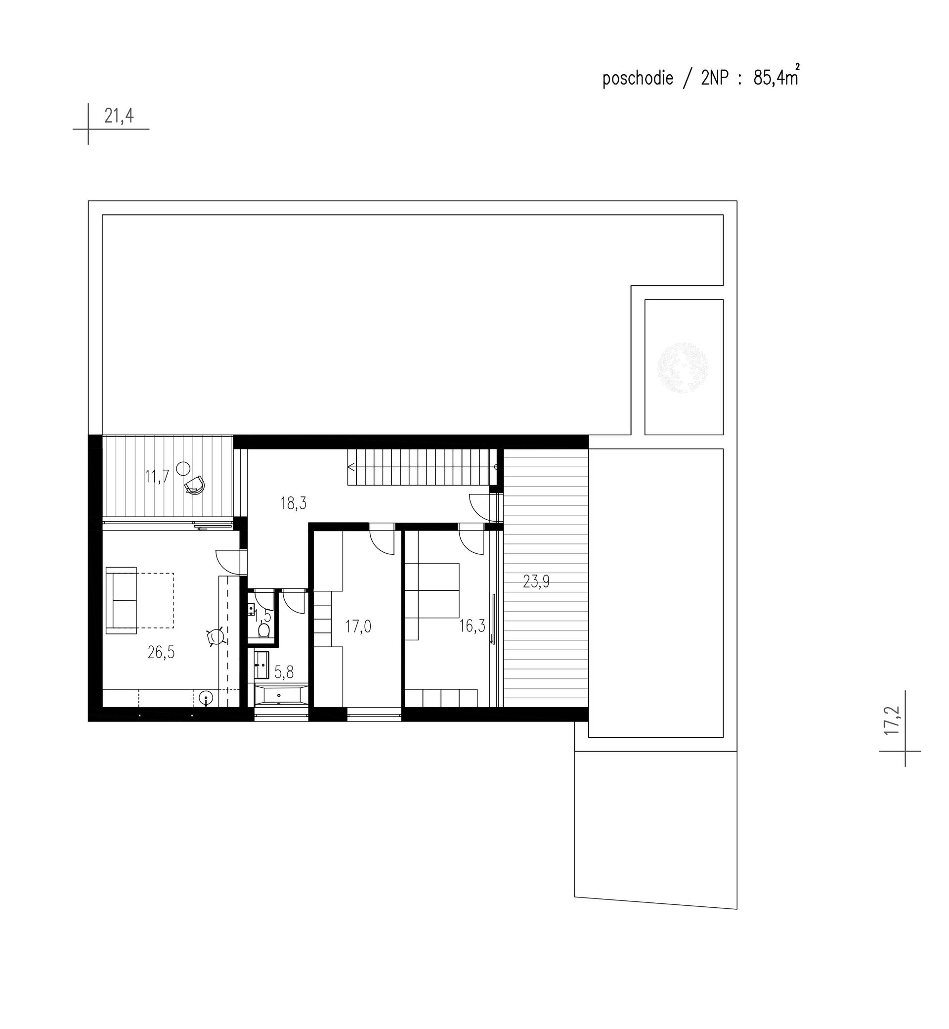
PÔDORYSY

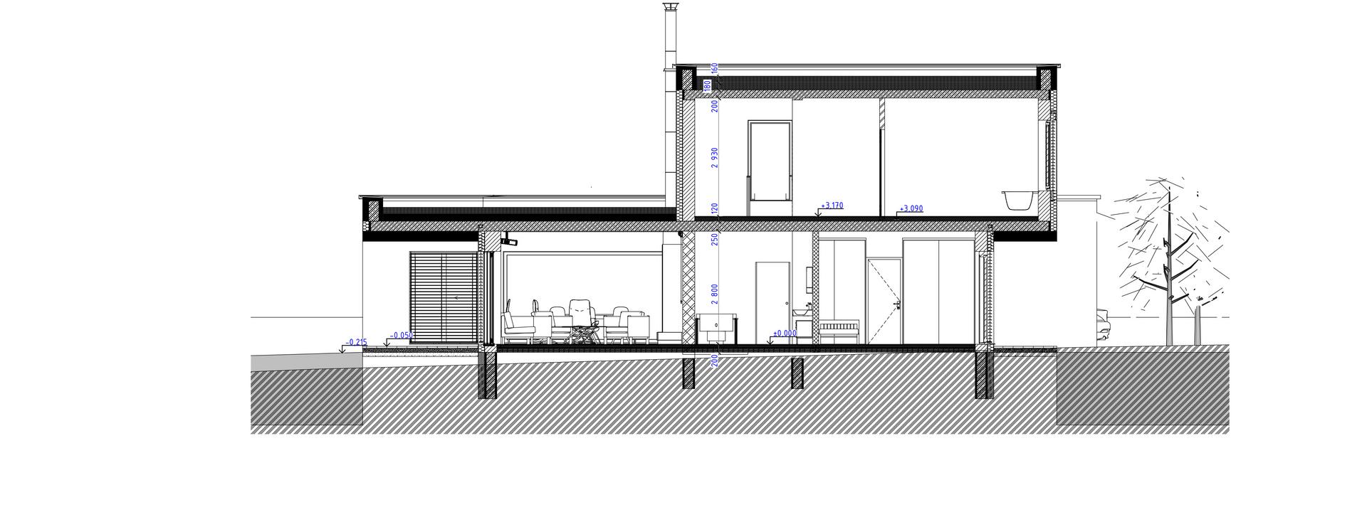
SCHEMATICKÉ REZY

VIZUALIZÁCIE

Autor architektonického diela:
Ing. arch. Romana Vantarová a Ing. Lukáš Beliš