162.1 m2 + 36.6 m2 garáž

Bungalov 2301 Z

Architektúru domu vytvárajú dve stodoly rôzneho materiálového riešenia - biela omietka alebo prevetrávaná fasáda s dizajnom dreva. Aby sa dosiahlo zväčšenie príjazdovej cesty, hmoty sú od seba paralelne odsunuté a tým zo strany záhrady taktiež vzniká polouzavretý súkromný priestor pre relax. Dom vyniká svojimi čistými líniami a minimalistickým dizajnom. Benefitom dispozičného riešenia je súkromný wellness, prechod od garáže priamo do domu, vzdušnosť a množstvo úložných priestorov. Interiér je prepojený so záhradou a komunikuje priamo s hlavnou terasou. Dom je vhodný aj na užšie pozemky.

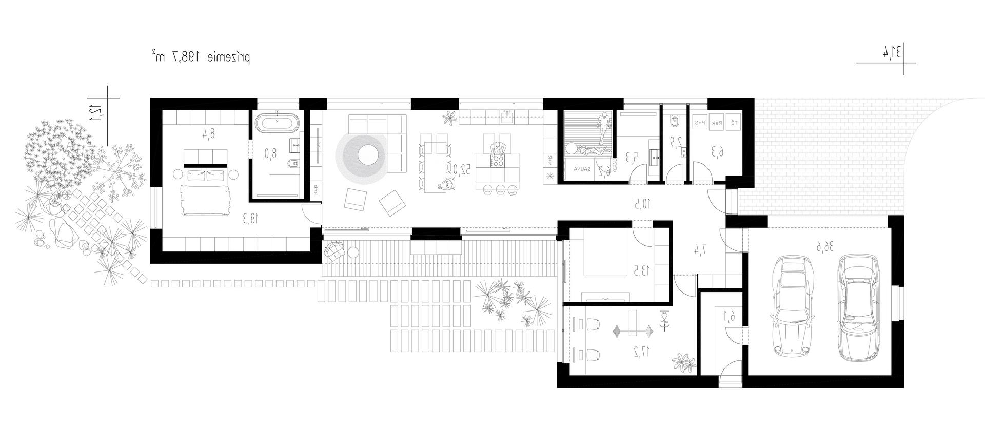
Počet osôb4-5
Orientácia vstupuZ, S
Kúpeľne2
Max. výška strechy6.25 m
Obytná plocha101 m2
Zastavaná plocha250.38 m2
Šírka pozemku16.1 m
Dĺžka pozemku38 m

4

Obytné miestnosti

198.7 m2

Celková úžitková plocha
Pôdorys - Bungalov 2301
Pohľad - Bungalov 2301Pohľad - Bungalov 2301Pohľad - Bungalov 2301Pohľad - Bungalov 2301

Hmotové riešenie domu

Schematický interiér a axonometria hmoty

×Zdieľať cez
Mám záujem o výstavbu domu Bungalov 2301 Z
Mám záujem len o projekt domu Bungalov 2301 Z
Mám inú otázku k domu Bungalov 2301 Z
1. Výber služby
2. Informácie
Kompletná výstavba "Holodom"
Vrátane základovej dosky a dph

Možnosť dokončenia domu "Na kľúč"

MÁTE ZÁUJEM O VÝSTAVBU U NÁS?

Vyplňte formulár a budeme Vás kontaktovať do 24 hodín späť a preberieme spolu detaily možnosti výstavby Vášho domu.

+ 421 905 563 348
Alebo volajte

Ceny domov sú informatívne. Záväzná cena výstavby domu bude vypočítaná na základe Vami potvrdeného finálneho Výkazu výmer a transparentného podrobného položkovitého rozpočtu, ktorý bude súčasťou Zmluvy o dielo. Výberom materiálov a technológií môžete cenu navýšiť aj znížiť.

Podobné projekty domov