324.8 m2, bez garáže

Podkrovný 1702 Z

Počet osôb5
Orientácia vstupuS,J
Kúpeľne3
Max. výška strechy8.3 m
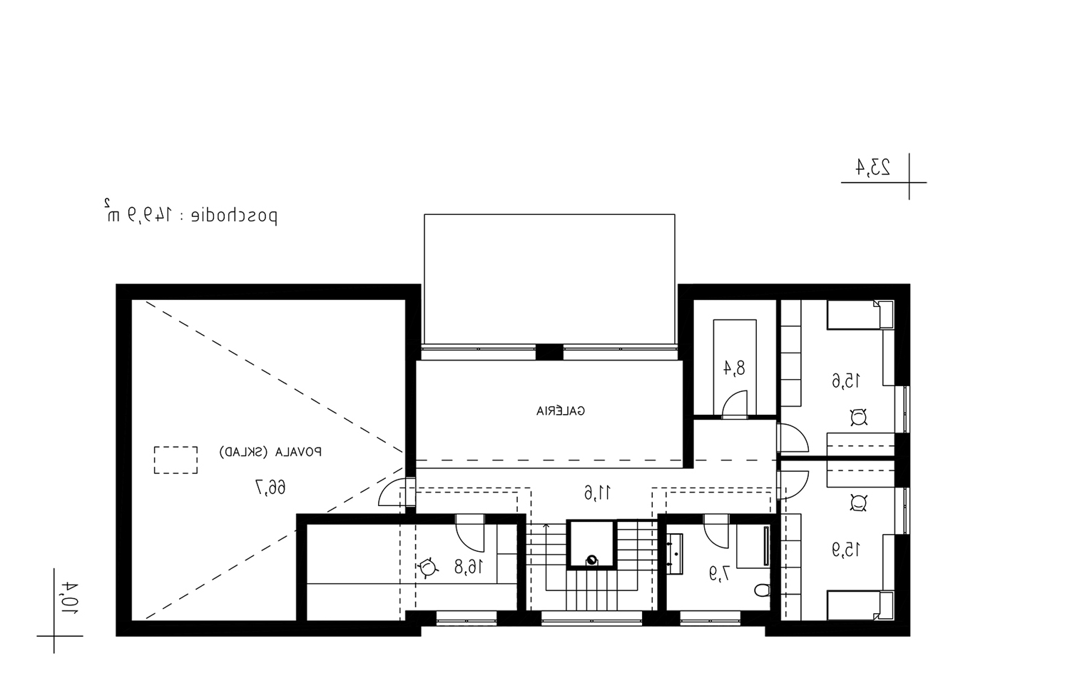
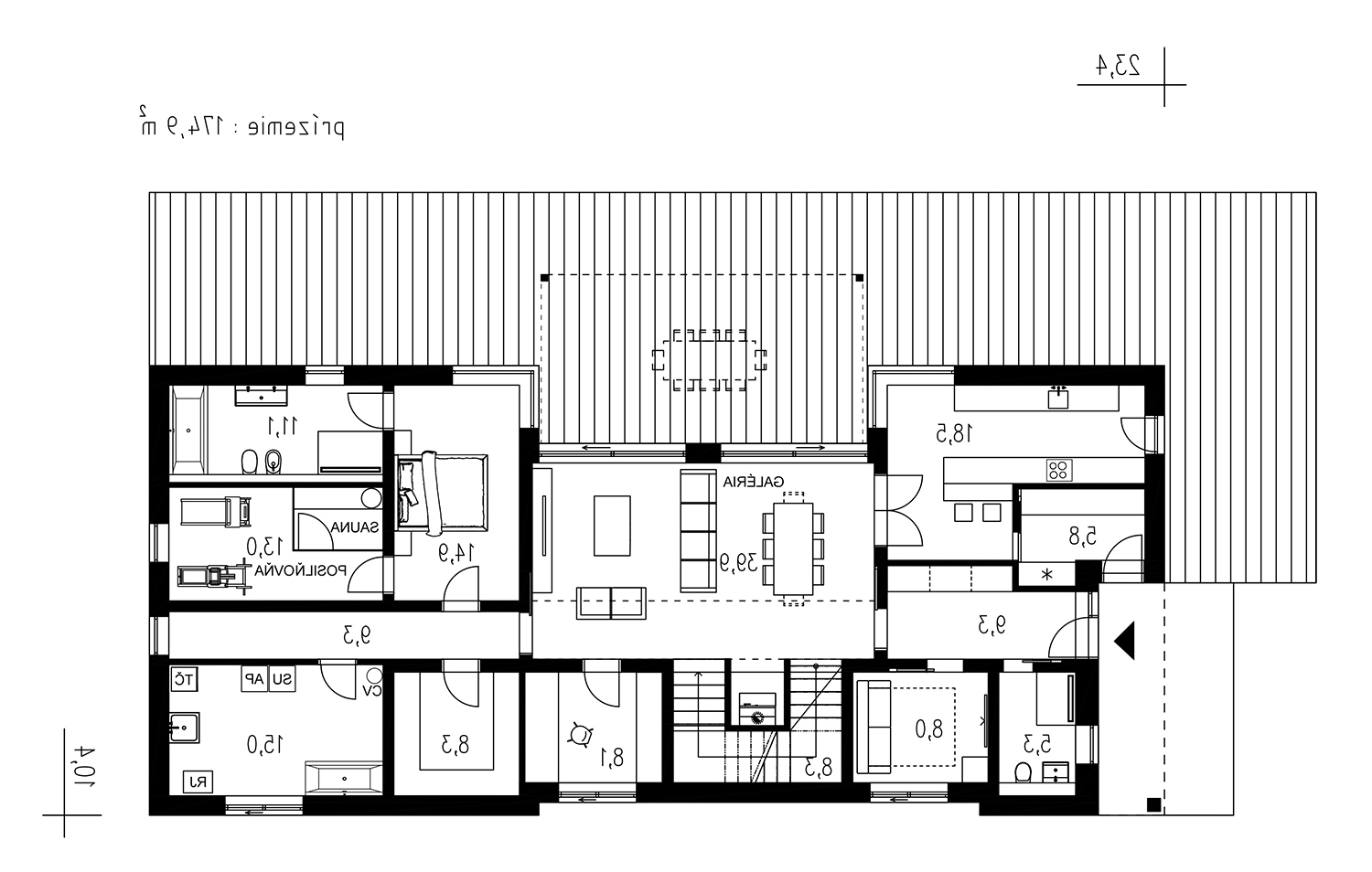
Obytná plocha137.9 m2
Zastavaná plocha227.2 m2
Šírka pozemku20 m
Dĺžka pozemku35 m

9

Obytné miestnosti

324.8 m2

Celková úžitková plocha
Pôdorys - Podkrovný 1702Pôdorys - Podkrovný 1702
Pohľad - Podkrovný 1702Pohľad - Podkrovný 1702Pohľad - Podkrovný 1702Pohľad - Podkrovný 1702
×Zdieľať cez
Mám záujem o výstavbu domu Podkrovný 1702 Z
Mám záujem len o projekt domu Podkrovný 1702 Z
Mám inú otázku k domu Podkrovný 1702 Z
1. Výber služby
2. Informácie
Kompletná výstavba "Holodom"
Vrátane základovej dosky a dph

Možnosť dokončenia domu "Na kľúč"

MÁTE ZÁUJEM O VÝSTAVBU U NÁS?

Vyplňte formulár a budeme Vás kontaktovať do 24 hodín späť a preberieme spolu detaily možnosti výstavby Vášho domu.

+ 421 905 563 348
Alebo volajte

Ceny domov sú informatívne. Záväzná cena výstavby domu bude vypočítaná na základe Vami potvrdeného finálneho Výkazu výmer a transparentného podrobného položkovitého rozpočtu, ktorý bude súčasťou Zmluvy o dielo. Výberom materiálov a technológií môžete cenu navýšiť aj znížiť.

Podobné projekty domov