155.1 m2, bez garáže

Poschodový 1609 Z

V tomto dome sa spojilo to najlepšie - moderná architektúra a design interiéru, energetická úspornosť a premyslená výspelá stavebná technológia. Nový dom pre Vás.

Počet osôb6
Orientácia vstupuJ
Kúpeľne2
Max. výška strechy6.7 m
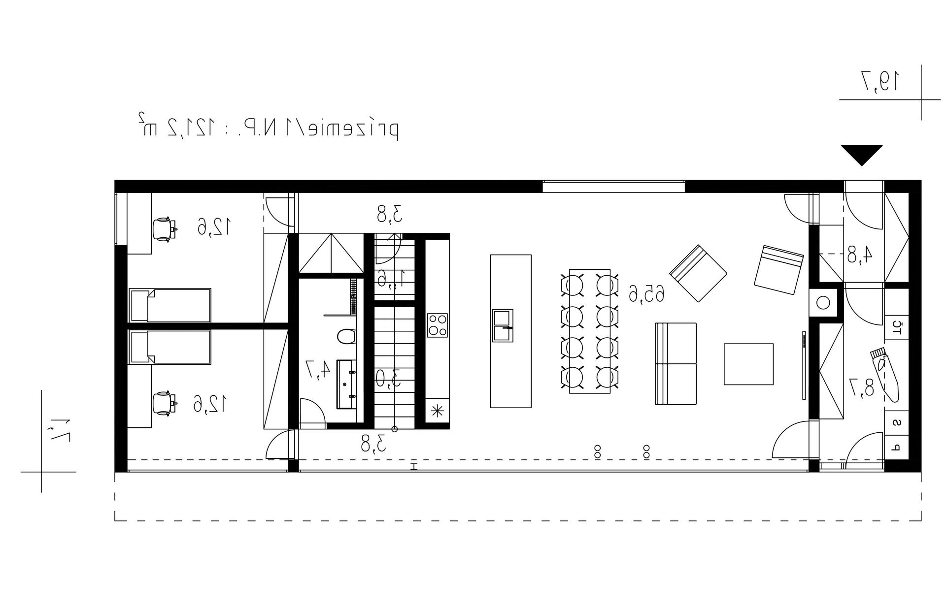
Obytná plocha137.5 m2
Zastavaná plocha141.2 m2
Šírka pozemku13.3 m
Dĺžka pozemku22.8 m

5

Obytné miestnosti

188.8 m2

Celková úžitková plocha
Pôdorys - Poschodový 1609Pôdorys - Poschodový 1609
Pohľad - Poschodový 1609Pohľad - Poschodový 1609Pohľad - Poschodový 1609Pohľad - Poschodový 1609
×Zdieľať cez
Mám záujem o výstavbu domu Poschodový 1609 Z
Mám záujem len o projekt domu Poschodový 1609 Z
Mám inú otázku k domu Poschodový 1609 Z
1. Výber služby
2. Informácie
Kompletná výstavba "Holodom"
Vrátane základovej dosky a dph

Možnosť dokončenia domu "Na kľúč"

MÁTE ZÁUJEM O VÝSTAVBU U NÁS?

Vyplňte formulár a budeme Vás kontaktovať do 24 hodín späť a preberieme spolu detaily možnosti výstavby Vášho domu.

+ 421 905 563 348
Alebo volajte

Ceny domov sú informatívne. Záväzná cena výstavby domu bude vypočítaná na základe Vami potvrdeného finálneho Výkazu výmer a transparentného podrobného položkovitého rozpočtu, ktorý bude súčasťou Zmluvy o dielo. Výberom materiálov a technológií môžete cenu navýšiť aj znížiť.

Podobné projekty domov