Žilina 2019 súkromný investor
Už realizované

Bungalov osadený vo svahu

Realizovali sme výstavbu rodinného domu podľa invidividuálneho projektu od Ing. arch. Richarda Lichého.

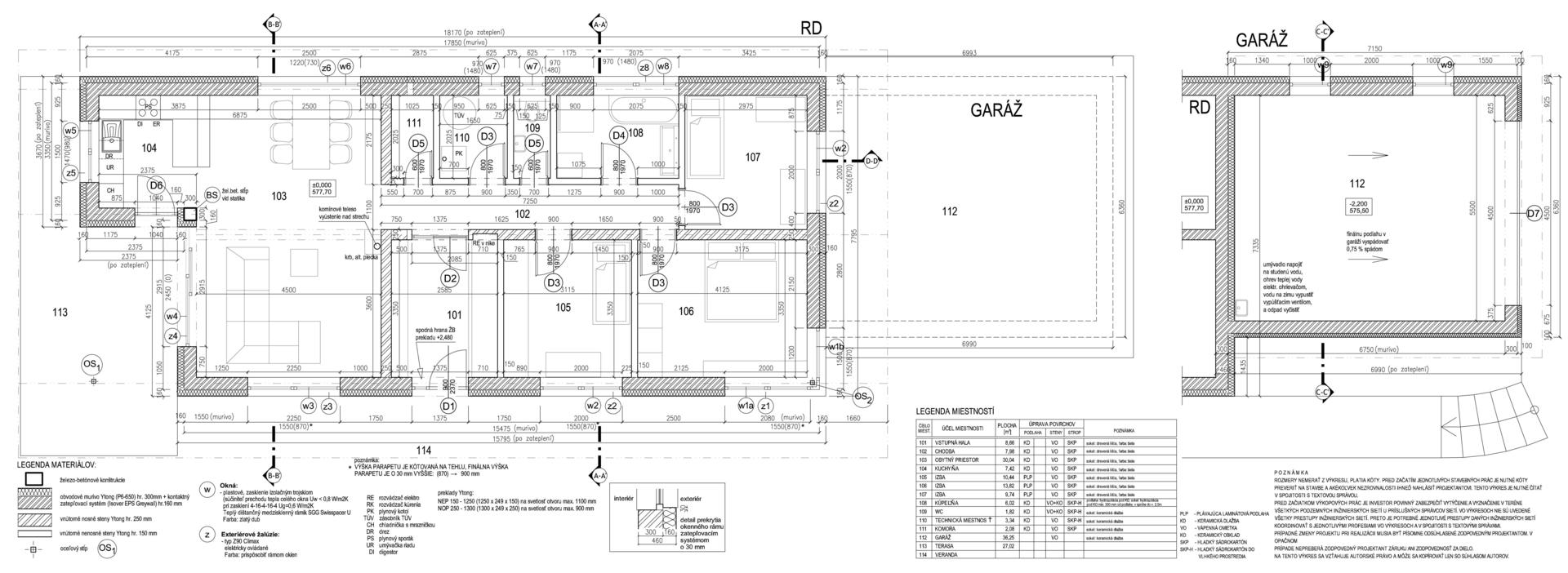
Individuálny rodinný dom je jednopodlažný. Z exteriéru je do objektu jeden hlavný vchod z juhovýchodnej strany. Z prístupovej komunikácie zo severu je cez existujúcu bránu navrhovaný vjazd na spevnenú plochu
pred domom spolu so vstupnou bráničkou pre peších smerujúcou k hlavnému vstupu do domu. Na tejto úrovni vjazdu -2,170 je v prednej časti domu navrhovaná dvojgaráž a dve odstavné plochy pre autá. Po exteriérových schodoch sa dostávame na vyššiu úroveň ±0,000 samotného RD. Zo vstupnej haly na úrovni ±0,000 je prístupná technická miestnosť, špajza, samostatné WC, kúpeľňa, tri izby a vstup do otvoreného obytného
priestoru s jedálenským kútom a kuchyňou. 

Hmotovo zasunutá terasa prístupná z kuchyne a obývacieho priestoru je prekrytá drevenou konštrukciou krovu, s jedným nosným stĺpom.

 

Recenzia od majiteľov:

"Zhruba pred rokom sme sa dohodli na spolupráci a tento týždeň som s pánmi Jankechom a Michalcom podpisoval preberací protokol.
Dnes som veľmi rád, že sme sa rozhodli pre Vašu spoločnosť. Výsledok splnil moje očakávania.
Za celé obdobie sa nevyskytol vážnejší problém, všetko fungovalo. Musím oceniť hlavne prístup oboch pánov - dalo sa na nich spoľahnúť, veci riešili promptne, konštruktívne a iniciatívne. Maximálna spokojnosť. Ešte raz veľká vďaka."

Mám záujem o výstavbu
Mám záujem len o projekt
Mám inú otázku

Máte záujem o výstavbu?

Vyplňte formulár a budeme Vás spätne kontaktovať. Preberieme spolu detaily ohľadom možnosti výstavby Vášho domu, resp. si dohodneme nezáväzné osobné stretnutie, kde sa Vám predstavíme a preberieme všetky Vaše dotazy.

+421 905 563 348

Alebo nám zavolajte
Nahrajte projektovú dokumentáciu
Kliknite tu alebo potiahnite súbor
Súhlasím so spracovaním osobných údajov *
Pred odoslaním musíte vyplniť súhlas so spracovaním osobných údajov
Prosím vyberte etapu výstavby domu "Holodom"
Prosím vyplňte všetky požadované polia:
Kontaktný formulár bol úspešne odoslaný. Do 24 hodín Vás budeme spätne kontaktovať.
Kontaktný formulár nebolo možné odoslať. Prosím kontaktujte nás priamo na info@idealnedomy.sk alebo +421 905 563 348.
Dohodnúť konzultáciu

Podobné realizované projekty