126.8 m2 + 20.7 m2 garáž
Už zrealizované

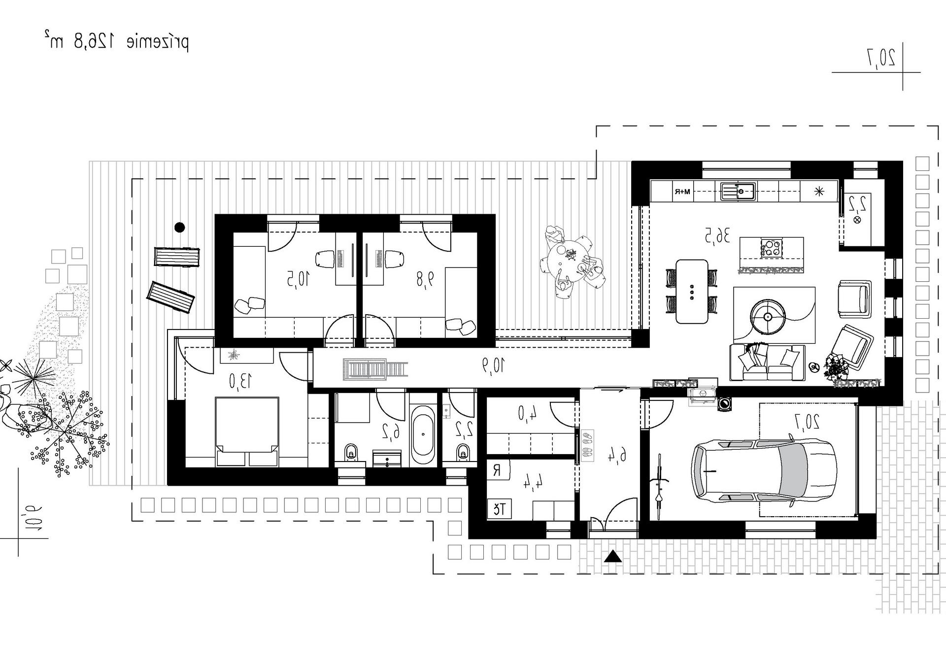
Bungalov 2204 Z

Bungalov 2204 s valbovou strechou je vhodný pre 4 člennú rodinu. Hlavnou výhodou je krytá terasa pri dennej časti, ktorá vytvára súkromie voči susedom a zároveň je užívateľ na čerstvom vzduchu. Druhá terasa slúži pre spálňu rodičov, poskytuje tiež úkryt pred nepriaznivým počasím a súkromie. Dispozícia dennej časti je chodbou oddelená od nočnej časti a tým sa navzájom nerušia. Garáž je napojená priamo na dispozíciu domu a umožňuje tak čistenie krbu z tejto strany. Architektúra domu disponuje veľkými okennými otvormi v obytných miestnostiach. Na fasáde je použitá omietka s hrubším zrnom pieskovej farby a vďaka tomu dom pôsobí prírodným dojmom.

Počet osôb4
Orientácia vstupuS, V
Kúpeľne1
Max. výška strechy5.7 m
Obytná plocha69.8 m2
Zastavaná plocha168.9 m2
Šírka pozemku14.6 m
Dĺžka pozemku28 m

4

Obytné miestnosti

126.8 m2

Celková úžitková plocha
Pôdorys - Bungalov 2204
Pohľad - Bungalov 2204Pohľad - Bungalov 2204Pohľad - Bungalov 2204Pohľad - Bungalov 2204
×Zdieľať cez
Mám záujem o výstavbu domu Bungalov 2204 Z
Mám záujem len o projekt domu Bungalov 2204 Z
Mám inú otázku k domu Bungalov 2204 Z
1. Výber služby
2. Informácie
Kompletná výstavba "Holodom"
Vrátane základovej dosky a dph

Možnosť dokončenia domu "Na kľúč"

MÁTE ZÁUJEM O VÝSTAVBU U NÁS?

Vyplňte formulár a budeme Vás kontaktovať do 24 hodín späť a preberieme spolu detaily možnosti výstavby Vášho domu.

+ 421 905 563 348
Alebo volajte

Ceny domov sú informatívne. Záväzná cena výstavby domu bude vypočítaná na základe Vami potvrdeného finálneho Výkazu výmer a transparentného podrobného položkovitého rozpočtu, ktorý bude súčasťou Zmluvy o dielo. Výberom materiálov a technológií môžete cenu navýšiť aj znížiť.

Podobné projekty domov