Teplička nad Váhom 2019 IDEÁLNE DOMY, s.r.o.
Už realizované

NOVOSTAVBA V TEPLIČKE n/V

Tento dvojposchodový dom s plochou strechou sme zrealizovali v obci Teplička nad Váhom.

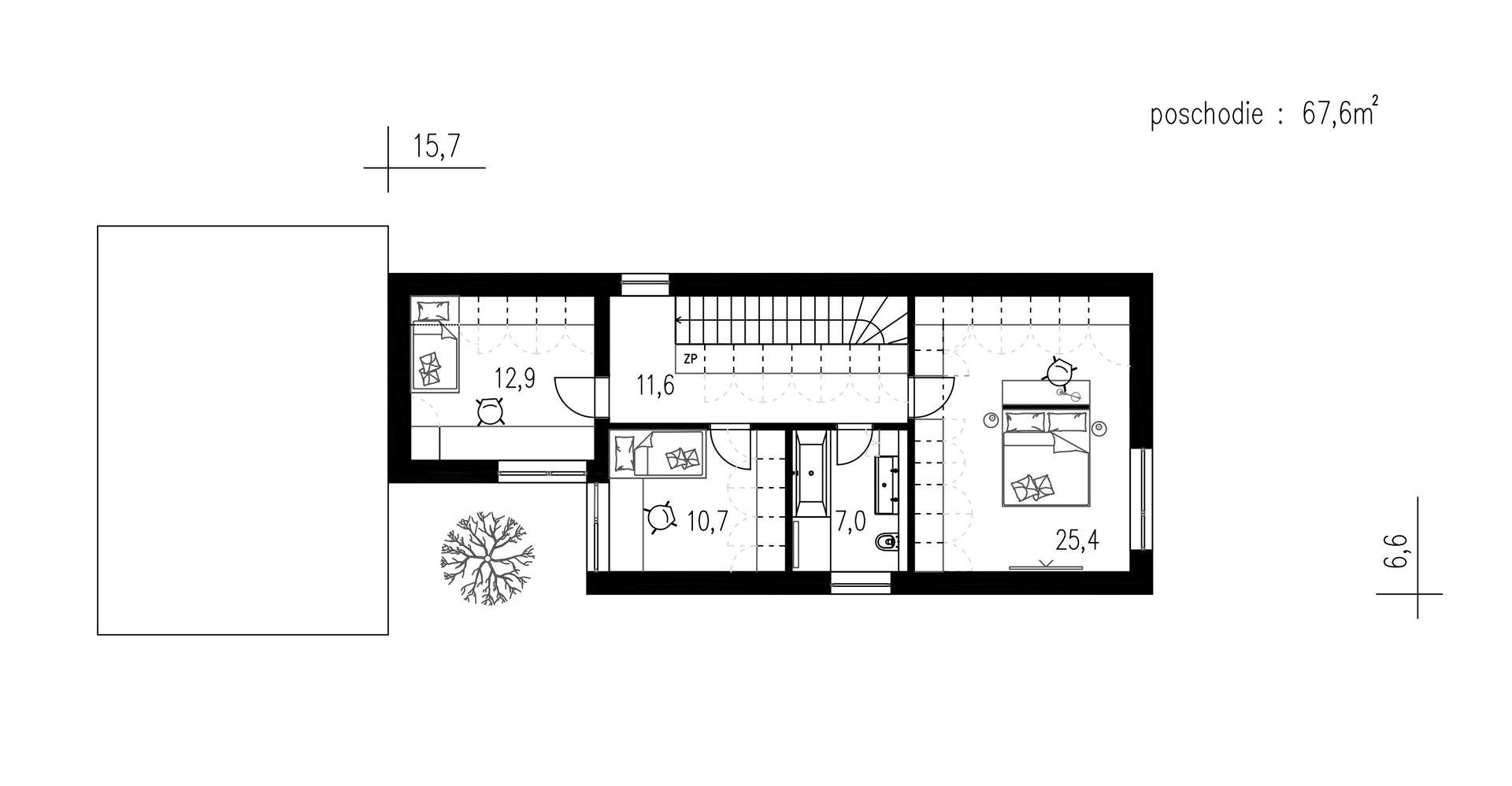
Zaujme svojím minimalistickým a vkusným dizajnom. Hodí sa na dlhé a úzke pozemky. Ak využijete hmotu prístrešku pri dome, vytvorí sa Vám tak átrium , ktoré ponúka intimnu zónu možnej terasy. Interiér je vybavený 4 obytnými miestnosťami, ktoré sú dostatočne vybavené úložným priestorom ako aj ostatné priestory domu.

Stavba je založená na základových pásoch, nadstavených DT tvárnicami so zateplenou základovou doskou. Múry sú murované z Ytong statik, stropy sú realizovaná so železobetónu.

 

Viac informácií ohľadom tejto stavby - DOM NA PREDAJ: 

https://idealnebyvanie.sk/domy-na-predaj/minimalisticky-dom-s-plochou-strechou

 

V prípade záujmu o tento projekt: 

https://idealnedomy.sk/katalog/poschodovy-1801?viewType=grid&page=2 

 

Recenzia, ktorú nám poslali majitelia po necelom roku od odovzdania domu:

"Keď sme hľadali dom na bývanie pre našu rodinu, mali sme veľa kritérií, ktoré hrali úlohu pri výbere.
Nechceli sme stráviť 5 rokov prípravami, hľadaním vhodného a lacného pozemku a následne víkendovým fúrikovaním a "svojpomocnou výstavbou". Profesne sme stavbári, takže nároky sme mali hlavne na kvalitu konštrukcií, logiku dispozície a využitie pozemku. Hľadali sme viac mestské bývanie, preto nám projekt domu, ktorý sme našli, zapasoval naozaj všetkým. Návrh a realizácia od IDEÁLNYCH DOMOV sa v podstate úplne trafila do našich nákresov a konštrukčne dokonca prekvapil, pretože strop nad druhým podlažím je tiež železobetónový, čo zaručuje oveľa kvalitnejšiu strechu ako väzníky napchaté sklenou vatou. Od kúpy holodomu, po nasťahovanie to trvalo pol roka a využili sme možnosť väčšiny dokončovacích prác od samotnej firmy.
Veľkosťou a dispozíciou je to ideálny dom pre štvorčlennú rodinu, dolná dispozícia má úžasný spoločný denný priestor, kde je prepojená obývacia, jedálenská a kuchynská časť, dokonca máme miesto aj na pohodlnú pracovňu. Samostatné spodné WC nám umožnilo mať aj sprchu "pre psa" a technickú miestnosť pre jednotky rekuperácie a tepelného čerpadla. Na poschodí má každý svoj priestor, dve izby pre deti a jedna maxispálňa s využitím aj na cvičenie pilatesu. V kúpeľni sme stavili na jednoduchosť a účelnosť. Dom má naozaj veľa úložných priestorov, veľmi účelne sú navrhnuté schody, pod ktorými vznikla špajza. Hlavný vstup kryje prístrešok pre dve autá a projekt myslel aj na vonkajší sklad. Návrh interiéru v 3D bol súčasťou projektu a ten pamätal aj na úpravy okolo domu, ktoré určite postupne zrealizujeme, aby sme dotiahli dielo do funkčného a estetického celku.
Tento dom má proste všetko, čo sme od bývania v dome očakávali a IDEÁLNE DOMY to zvládli na jednotku. 
Premyslený návrh, kvalitné materiály, moderný dizajn, dôraz na energetickú efektívnosť a v neposlednom rade aj dobrá komunikácia a profesionálny prístup. To sú IDEÁLNE DOMY. Ďakujeme."
Rodina Matejičkova

Mám záujem o výstavbu
Mám záujem len o projekt
Mám inú otázku

Máte záujem o výstavbu?

Vyplňte formulár a budeme Vás spätne kontaktovať. Preberieme spolu detaily ohľadom možnosti výstavby Vášho domu, resp. si dohodneme nezáväzné osobné stretnutie, kde sa Vám predstavíme a preberieme všetky Vaše dotazy.

+421 905 563 348

Alebo nám zavolajte
Nahrajte projektovú dokumentáciu
Kliknite tu alebo potiahnite súbor
Súhlasím so spracovaním osobných údajov *
Pred odoslaním musíte vyplniť súhlas so spracovaním osobných údajov
Prosím vyberte etapu výstavby domu "Holodom"
Prosím vyplňte všetky požadované polia:
Kontaktný formulár bol úspešne odoslaný. Do 24 hodín Vás budeme spätne kontaktovať.
Kontaktný formulár nebolo možné odoslať. Prosím kontaktujte nás priamo na info@idealnedomy.sk alebo +421 905 563 348.
Dohodnúť konzultáciu

Podobné realizované projekty